








Devam Eden Projeler
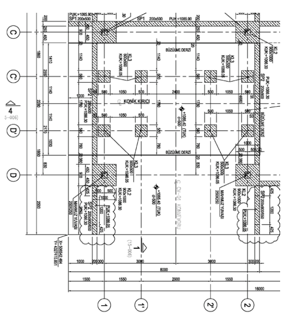
Hidroelektrik Santral Binası Mühendislik ve Detaylandırma Hizmetleri – Türkiye (Confidential)

Uzmanlık ve Deneyim

Spectra yıllara dayanan mühendislik ve tasarım tecrübesiyle, her projeye özel yaratıcı çözümler sunar. Üst yapı mühendisliğinden endüstriyel tesislerin tasarımlarına kadar geniş bir alanda uzman kadrosuyla, karmaşık projeleri güvenle hayata geçirir.
Projeye Özel Çözümler

Her proje Spectra için özgün bir hikayedir. Müşteri beklentileri, teknik gereksinimler ve sahanın ihtiyaçları derinlemesine analiz edilir, sonuç odaklı ve sürdürülebilir çözümler geliştirilir.
Güvenilirlik

Detaylı planlama, sürekli iletişim ve titiz uygulama sayesinde Spectra iş ortaklarının güvenini kazanıp her projede yüksek kaliteyi zamanında sunmayı hedefler. Güvenilirlik ilkesi, uzun vadeli iş birliklerinin de temelini oluşturmaktadır.
İletişim
Yeni Bağlıca mahallesi Etimesgut Bulvarı Qule Bağlıca 90B/15 Etimesgut/Ankara
admin@spectracons.com